恵比寿駅 徒歩4分 恵比寿レジデンス壱番館

ライフスタイルに対応した、さまざまなプランをご用意しました。

  • A type 間取り図
  • B type 間取り図
  • C type 間取り図
  • D type 間取り図
  • E type 間取り図


  • ※ 図面と現況が異なる場合は現況を優先します。

A type  1K  25.11m2

住戸専有面積:25.11m2(7.59坪)
トランクスペース(※8階以外):0.63m2
方位
A type 間取り図

B type  1K  25.25m2

住戸専有面積:25.25m2(7.63坪)
トランクスペース(※8階以外):0.63m2
方位
B type 間取り図

C type  1LDK  37.06m2

住戸専有面積:37.06m2(11.21坪)
トランクスペース(※8階以外):0.99m2
方位
C type 間取り図

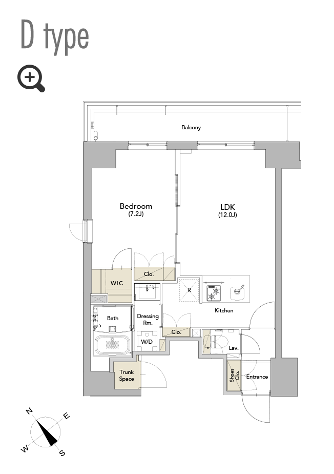
D type  1LDK  43.94m2

住戸専有面積:43.94m2(13.29坪)
トランクスペース:1.05m2
方位
D type 間取り図

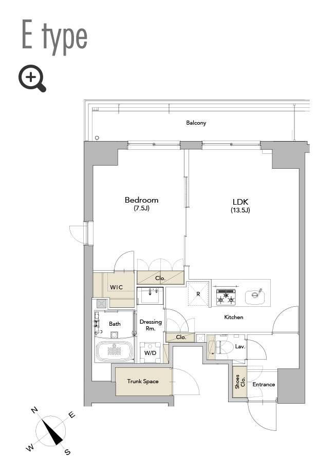
E type  1LDK  48.41m2

住戸専有面積:48.41m2(14.64坪)
トランクスペース:1.95m2+0.94m2(2ヵ所)
方位
E type 間取り図